拥有了设计案例,让你一秒应对所有户型难题!
作为一名合格的建筑师,户型虽然不是重中之重,却也是我们在工作时所面临的的难题之一,那么怎样设计户型才能使工作能“高效运转”从而节约时间呢? 在本专题中, EasyRef 灵感行星为妳分享了十套户型案例,为大家解决面临户型设计时的各大难题。
怎样增加空间的趣味性与互动性呢?
之前哈佛大学有一个关于“什么是美好生活”的研究,花了75年的时间,跟踪研究724个人的一生。最后发现,决定一个人的一生是不是幸福的关键不在于富有、成功,而在于“亲密关系”。那么什么样的户型设计才可以达到这一目的呢? LDK系统使联系紧密,家庭成员交流密切。 LDK空间指的是客厅(living room),餐厅(dinning room),厨房(kitchen)形成的空间系统。客厅、餐厅、厨房共处一个开放空间内,提升了空间使用效率;宽境采光通透郎阔,空间感更强;节省户内交通空间,缩短生活动线;空间同频,方便家人的情感交流。 在这里, EasyRef 灵感行星为妳准备了
洄游动线串联公共空间,趣味性更强“玄关,家政间,厨房,餐厅,玄关”串联的洄游动线,让生活更加高效便捷,让孩子的精力肆意释放。 那么下面这套苏州仁恒和园168户型,可以完美的诠释上述问题。

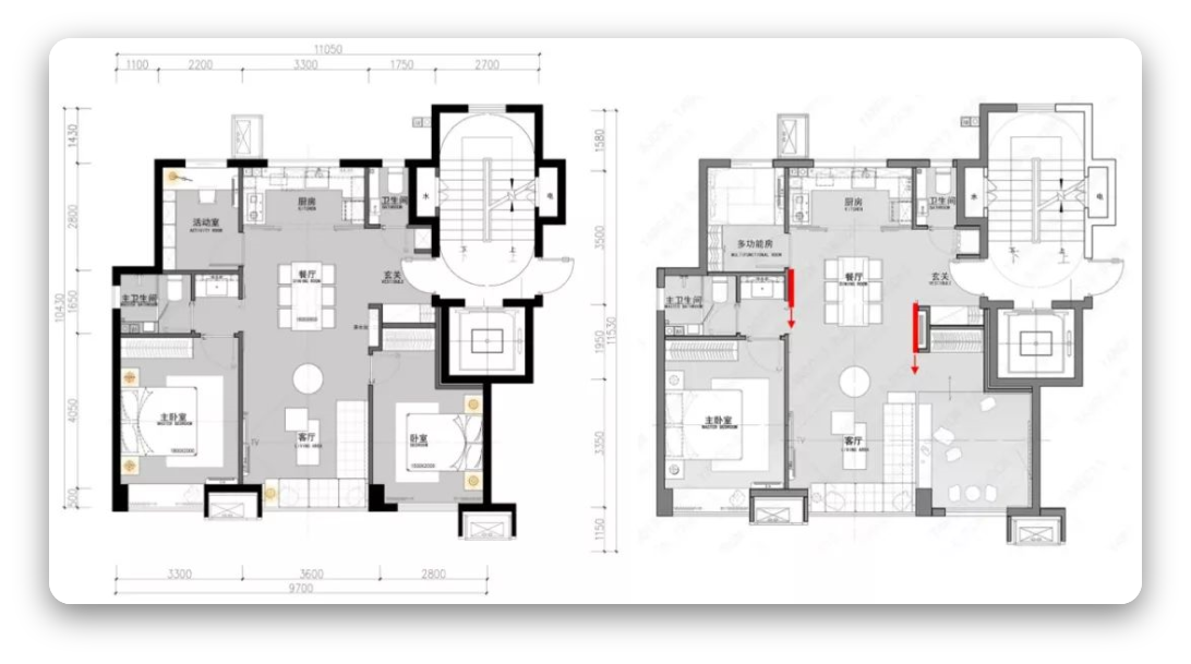
怎样使空间灵活可变,满足不同家庭成员的需求(书房、二胎需求)?
户内设置移门,客厅右侧空间满足多种生活场景,平日里的大横厅,在朋友到来时又可作为卧室。
卓越万科翡翠山晓 90 户型则可以为你解决上述问题:
餐厅、书房灵活可变,更可单独隔出一个多功能房间,即便二娃出生,也能从容应对。在这里,EasyRef 灵感行星为你提供的 常州都市森林 119 户型,则可以灵活解决上述需求。

想要全部投标文本吗? 点击查看更多~
